30 Grosvernor Square in London
David Chipperfield Architects- Type Refurbishment Hotel Culture / Leisure
- Material Stone
- Date 2025
- City London
- Country United Kingdom
- Photograph Simon Menges


The old Embassy of the United States in London, located in the historic Mayfair neighborhood and Eero Saarinen’s only built work in the United Kingdom, is now the Chancery Rosewood hotel, recently inaugurated following a meticulous refurbishment carried out by David Chipperfield Architects. The 1960 edifice has been fully adapted to its new use, but in a way that preserves its historical and architectural value.
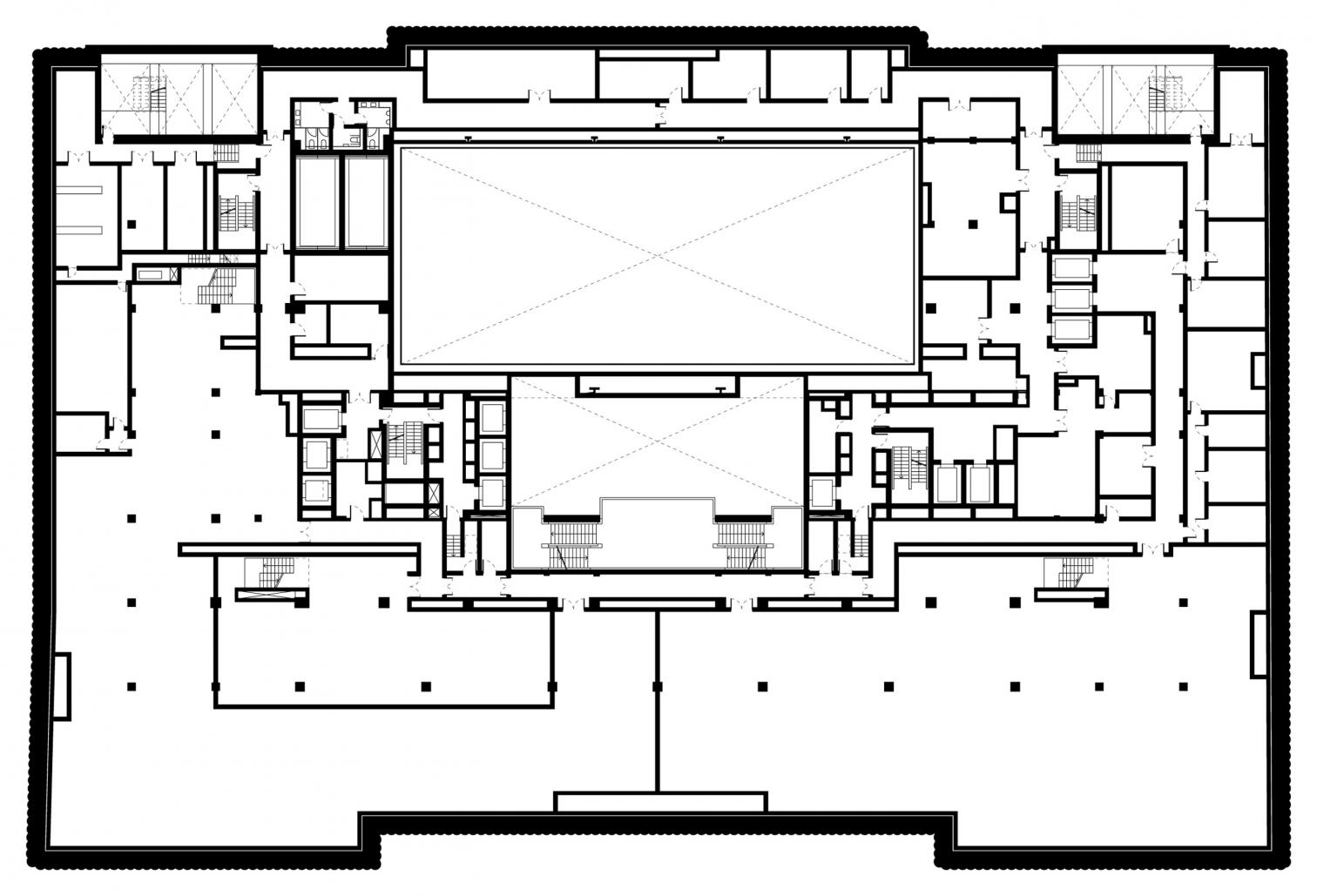
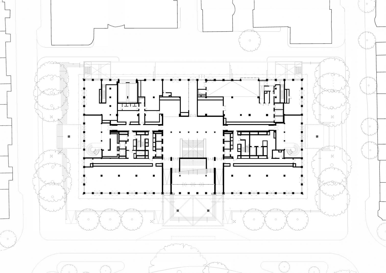
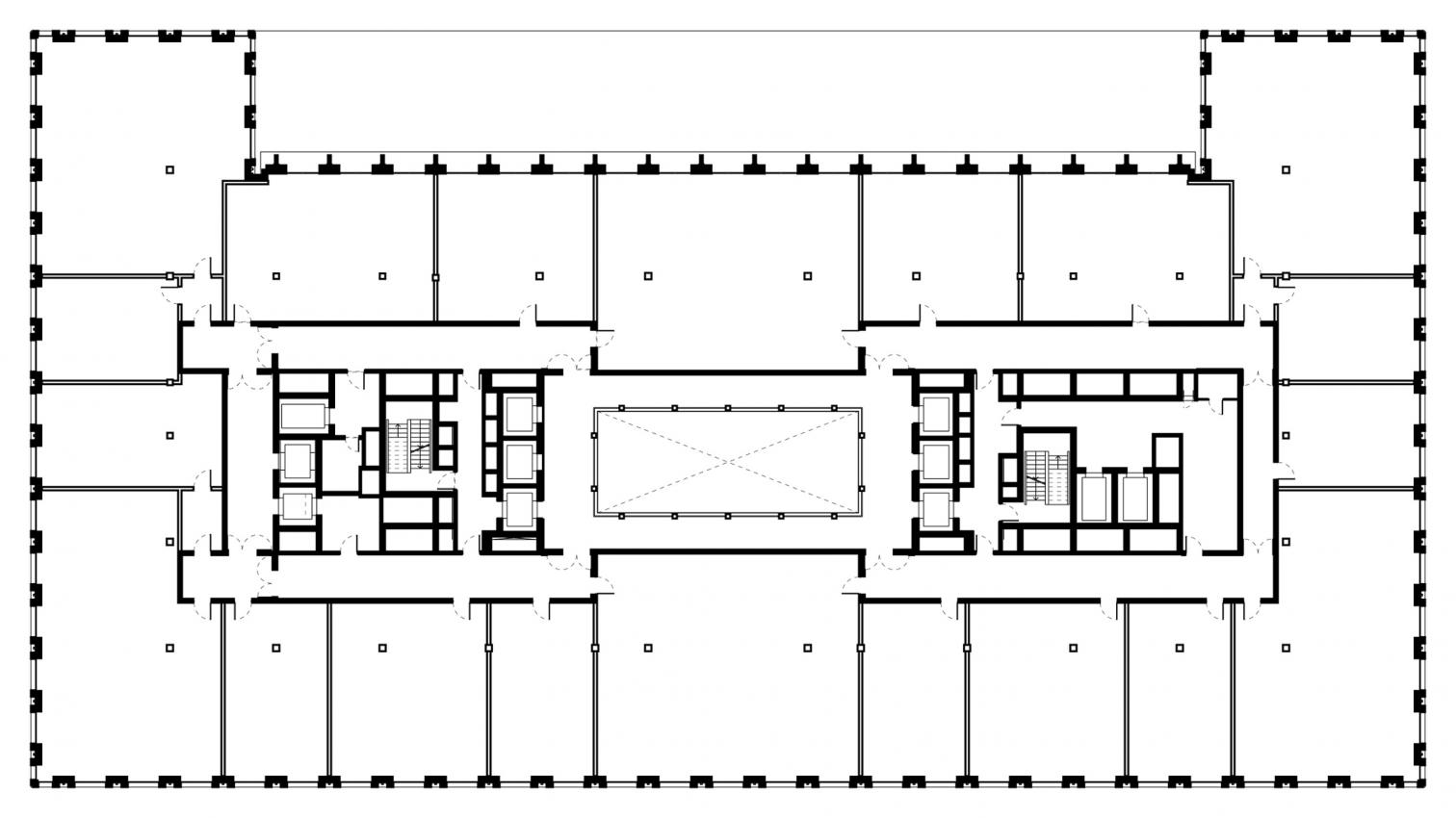
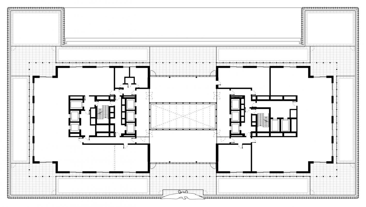
The project eliminated external security measures pertaining to the building’s former purpose, as well as the original concrete perimeter glacis, thus connecting the premises to Grosvenor Square while allowing retail spaces at street level. Indoor partitions were removed at ground level to form a continuous space characterized by the unique structural grid of the slab designed by Saarinen.
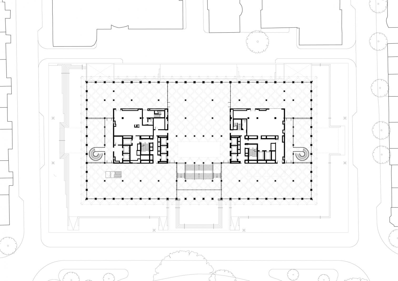
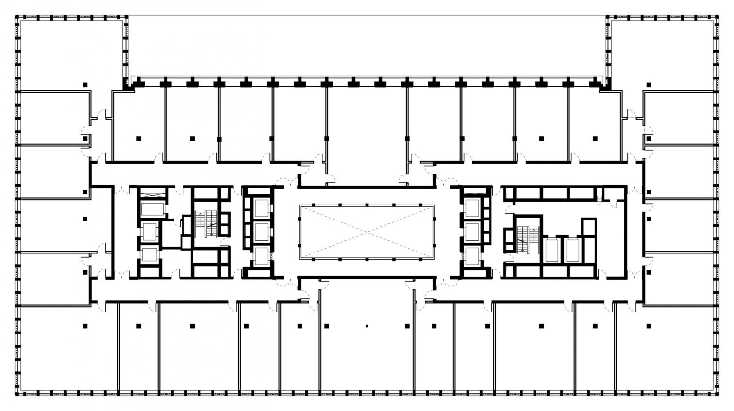
The hotel is organized around a central atrium that rises to the sixth story, vertically extended to form the crown, which continues the architectural language of the lower stories, with a new rhythm and increased floor-to-ceiling height. The design is the result of research conducted on the building’s history, which revealed an initial scheme by Saarinen that had a similar approach. At the top, a pavilion set back from the facade line contains premier suites and a terrace offering privileged views.
In terms of materials, the project opted for Portland stone and gold-like anodized aluminum, used in the gilded eagle sculpture of Theodore Roszak, now restored. More than 4,000 elements were carefully disassembled for cleaning and fixing, then reinstalled.
With a total area of 48,000 square meters, the hotel project is a combination of heritage preservation and functional renovation. Several interior designers took part in creating the spaces, including guest rooms, the lobby, and restaurants.













