Robert Day Sciences Center in Claremont (California)
BIG Bjarke Ingels Group- Type Education University
- Date 2025
- City Claremont (California)
- Country United States
- Photograph Laurian Ghinitoiu


Claremont McKenna College in Claremont, Southern California, has opened a center for scientific education and research, designed by the Danish firm Bjarke Ingels Group (BIG). Strategically located on the eastern edge of the campus, it is a new gateway into the university.
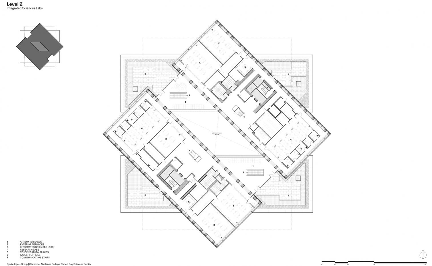
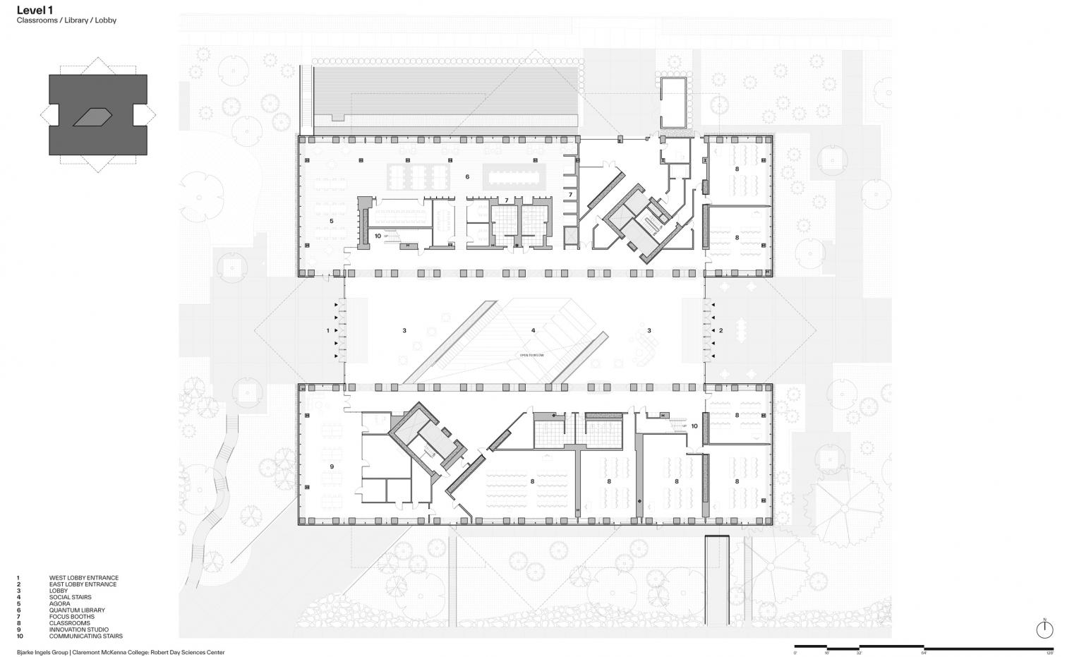
The 12,500-square-meter complex presents stacked volumes, each rotated 45 degrees in relation to the one right below, and the resulting voids create a large central atrium that offers itself as a vertical communal space. Every level is connected to the next by means of triangular wood-clad steel trusses, the geometries and textures of which continue outward.
The facade is executed with fiberglass-reinforced concrete. On the roof are more than 1,000 square meters of solar panels. Inside are laboratories, research facilities, a library, and classrooms along the perimeter that view the mountains. Eight terraces at the corners expand the program to the open air.


























