Biblioteca para el Liceo Francés de Madrid
Alberto Campo Baeza- Tipo Educación
- Fecha 2025
- Ciudad Madrid
- País España
- Fotografía Javier Callejas


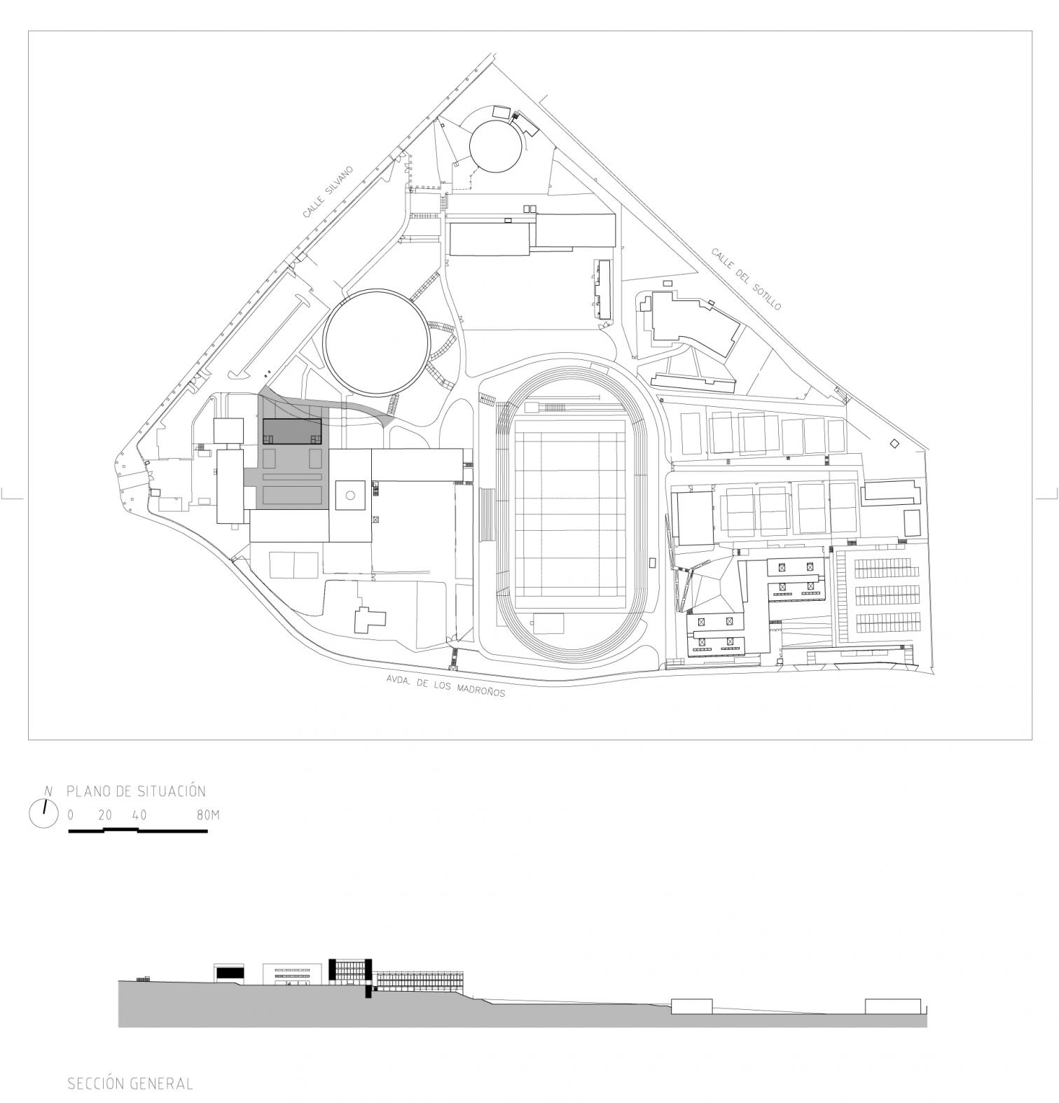
La nueva biblioteca es la pieza más singular del proyecto de ampliación del Liceo Francés, resultado del concurso internacional celebrado en 2018. El objetivo principal de la propuesta era conformar un conjunto ordenado y unitario, procurando además la mayor economía de medios, tanto en las formas como en los materiales y sistemas constructivos.
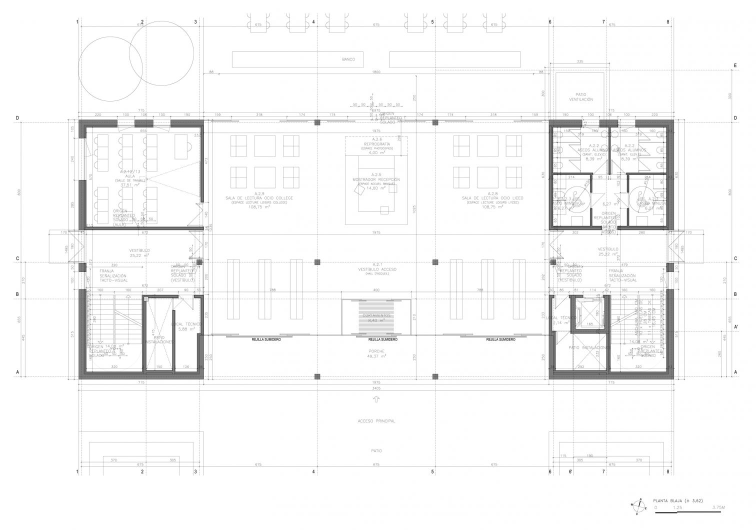
Se trata de una caja de 34x15x12m, de hormigón visto por fuera y completamente blanca y llena de luz por dentro. La fachada norte se resuelve íntegramente con un cerramiento acristalado de arriba abajo que se prolonga en las esquinas. En una de ellas también se acristala el techo, generándose así un triedro de luz.
A la sala de lectura, de doble altura, se vuelcan el resto de espacios que la sirven a través de una serie de huecos dispuestos estratégicamente, dando lugar a una auténtica boîte a lumière.











