Magnifica Fabbrica del Teatro alla Scala de Milán - FRPO + Walk + SD Partners
Primer premio- Arquitecto FRPO Walk Architecture & Landscape SD Partners Architettura e Ingegneria
- Tipo Paisajismo / Urbanismo Cultura / Ocio Centro cultural Teatro
- Ciudad Milán
- País Italia
La propuesta del equipo ítalo-español compuesto por FRPO Rodriguez y Oriol Arquitectos (Pablo Oriol y Fernando Rodríguez), Walk Architecture & Landscape (Juan Tur Mc Glone) y SD Partners (Massimo Giuliani, Alessandro Viganò y Beatrice Meroni) ha recibido el primer premio en el concurso internacional Magnifica Fabbrica, promovido por el Ayuntamiento de Milán junto con la Fondazione Teatro alla Scala.
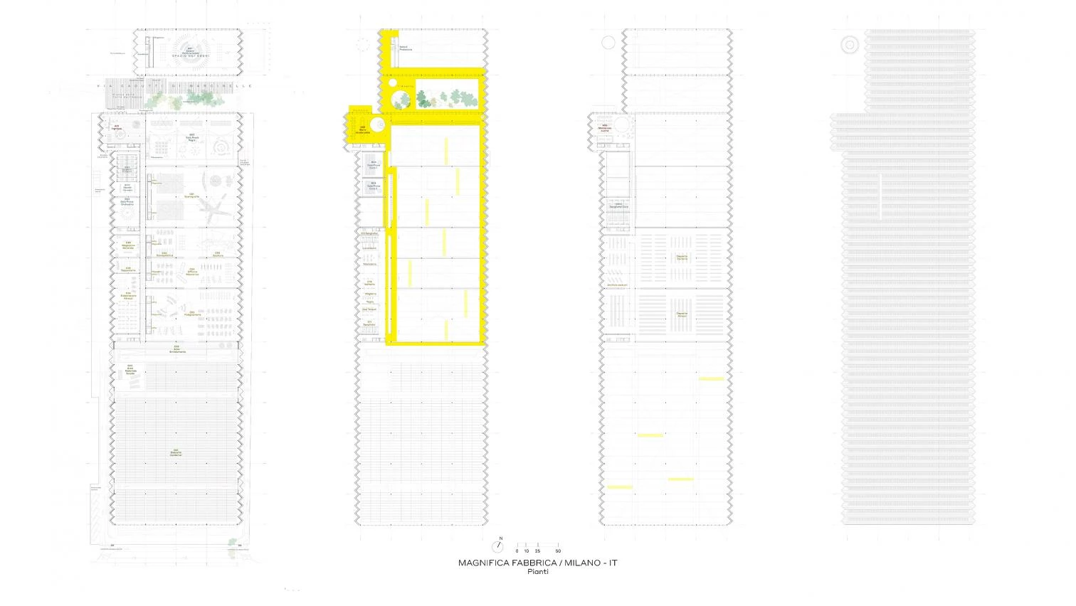
El objeto del concurso —realizado en dos fases de forma abierta y anónima, que ha recibido un total de 59 proyectos— era la creación de un nuevo complejo para el Teatro alla Scala —con talleres para la producción de decorados, atrezo, vestuario, además de salas de ensayo, camerinos y almacenes—, así como la ampliación del Parco della Lambretta, que incluye la integración del llamado Palazzo di Cristallo, con el objetivo de recuperar el área de la antigua fábrica de automóviles de Innocenti ubicada en el distrito de Lambrate, la cual se encuentra en un proceso de regeneración urbana. Abarcando 66.450 metros cuadrados construidos y 97.800 metros cuadrados de parque, el proyecto pretende crear un nuevo centro cultural, artístico y de producción, concentrando en un único espacio todas las fases del proceso creativo, desde el diseño hasta la producción, al mismo tiempo que se acerca a la ciudadanía el mundo del teatro.
La Magnifica Fabbrica será un ZEB (Zero Energy Building), producirá más energía de la que consumirá, con un sistema fotovoltaico de 3600 kW sobre la cubierta translúcida y un gigantesco sistema geotérmico de ciclo abierto, que contribuirá a la depuración de las aguas subterráneas.
El equipo multidisciplinar incluye también a Studio Gibelli, Ing. Luca Stefanutti, Agroservice, TRM y Mecanismo Ingeniería.

Imágenes Supernova Visual
























FRPO + Walk Architecture & Landscape + SD Partners
Directores proyecto Project leaders
Pablo Oriol, Fernando Rodríguez (FRPO Rodríguez y Oriol); Juan Tur Mc Glone (Walk Architecture & Landscape); Massimo Giuliani, Alessandro Viganò, Beatrice Meroni (SD Partners)
Equipo Team
Adrián Sánchez Castellano, María Díaz Martín, Carlos Crespo Díaz-Meco, Pablo González-Besada Allue (FRPO Rodríguez y Oriol); Carlos Javier Villar Villalobos, Madhura Hardas, Adriano Barrero Chirino (Walk Architecture & Landscape; Ing. Enrico Moncada, Arch. Carmen Iannone, Arch. Irene Degli Occhi (SD Partners)
Consultores Consultants
Studio Gibelli, Ing. Luca Stefanutti, Agroservice, TRM, Mecanismo Ingeniería
Imágenes Images
Supernova Visual