Tourist office of Chaponost
Link Architectes Associés- Type Headquarters / office
- Date 2024
- City Chaponost
- Country France
- Photograph Vladimir de Mollerat du Jeu


Nearly 2,000 years ago, the city of Lugdunum – now Lyon – was supplied with water by a network of Roman aqueducts, among them the Gier, the longest (over 80 kilometers) and most technically complex. A stretch of it, formed by the alignment of 72 arches, rises on the north part of a French locality named Chapponst as a tangible vestige of Rome’s presence. In this history-charged place rises a new tourist office, designed as a sober, respectful architectural intervention by Link Architectes Associés.
Far from competing with the monumental aqueduct, the new building seeks to accompany it discreetly, integrated with the landscape. Situated on slightly sloping fallow land classified as agricultural, the project was limited to a maximum of 100 square meters. Given this limitation, the architects opted for a layered composition that would define the access, the construction, and the visual preservation of the environs.
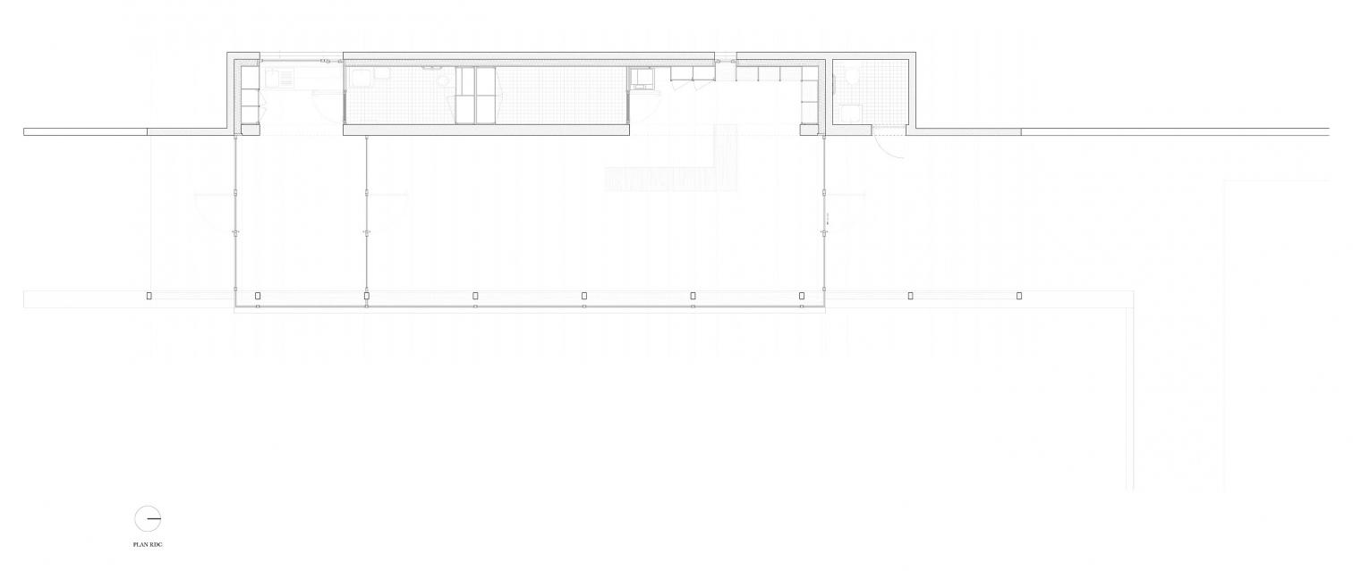
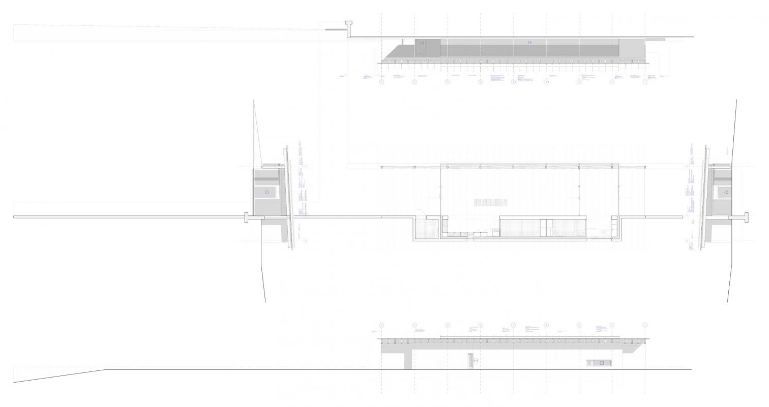
Th estructure is organized in three levels: a first functional layer to distribute parking and connect with the roadway; a second one containing the building through a retaining wall that manages the slope; and a third one, open, preserving a clean view of the surroundings without meddling with it. The concrete wall, colored and polished through sandblasting, is a central element of the project. It is aligned with the aqueduct and stretches on beyond the building it crosses, harboring public services and ancillary spaces.
Inside, the space is reduced to the essential: a large uninterrupted hall featuring the reception area, a zone for exhibitions, and a meeting room. The design optimizes every square meter, avoiding unnecessary corridors. On this base, the wooden structure and the zinc roof protect the volume, which evokes the rhythm of Roman arches and reinforces the sense of shelter.
The tourist office wants to give the impression of ‘disappearance’ in the landscape. This is not a reconstruction of something historical, but a modern interpretation that strikes up a respectful, silent dialogue with the past.




















