Missionsstrasse House, Basel (Switzerland)
Buchner Bründler Architekten- Type House Housing Renovation
- Date 2020
- City Basel
- Country Switzerland
- Photograph Maris Mezulis Rory Gardiner
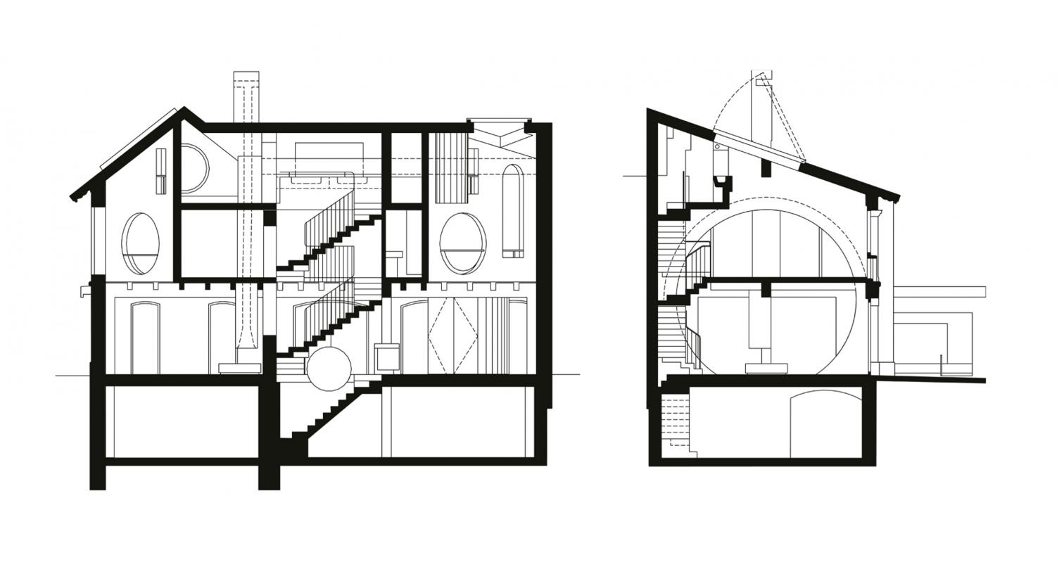
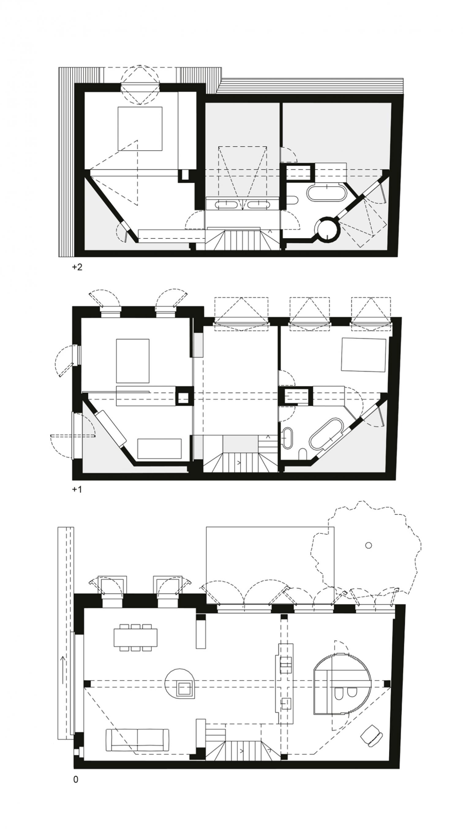
A coach house survived the demolition of the ‘fin-de-siècle’ villa that it served, and after fulfilling different purposes in the course of the 20th century, it has become home to a family.
That there could only be windows on two sides was solved by toplit atriums and a double-story round opening that makes the space seem larger: gestures which involved inserting a finely molded concrete framework.










Technical Info
ShowHide technical info
Arquitectos Architects
Buchner Bründler Architekten / Daniel Buchner, Andreas Bründler (socios partners); Jon Garbizu Etxaide (dirección de proyecto project management); Nina Kleber, Sharif Hasrat (equipo team)
Superficie Area
405 m²
Fotos Photos
Maris Mezulis; Rory Gardiner