Casa en la Missionsstrasse en Basilea
Buchner Bründler Architekten- Tipo Casa Vivienda Reforma
- Fecha 2020
- Ciudad Basilea
- País Suiza
- Fotografía Maris Mezulis Rory Gardiner
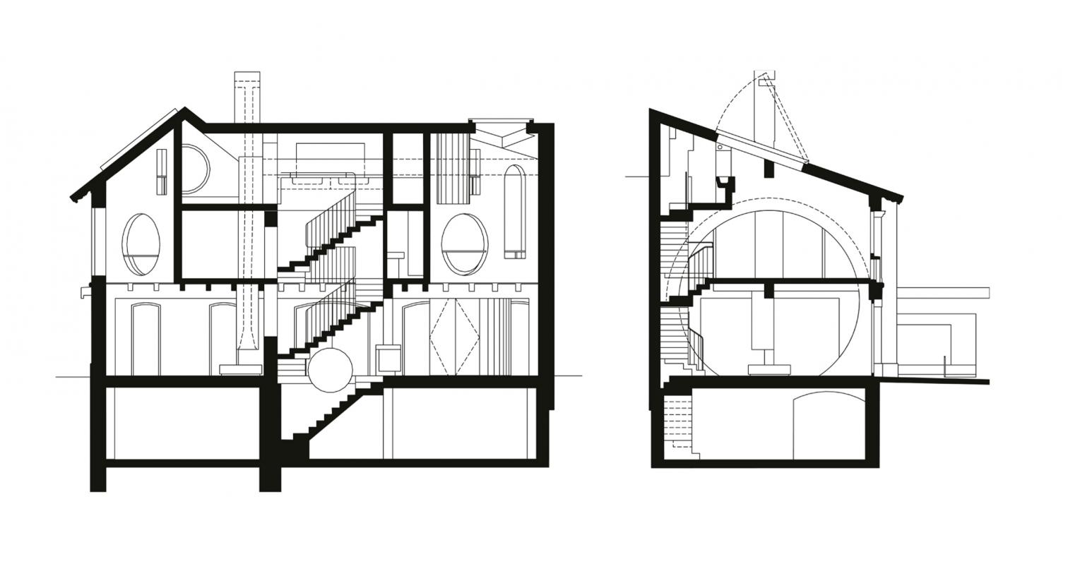
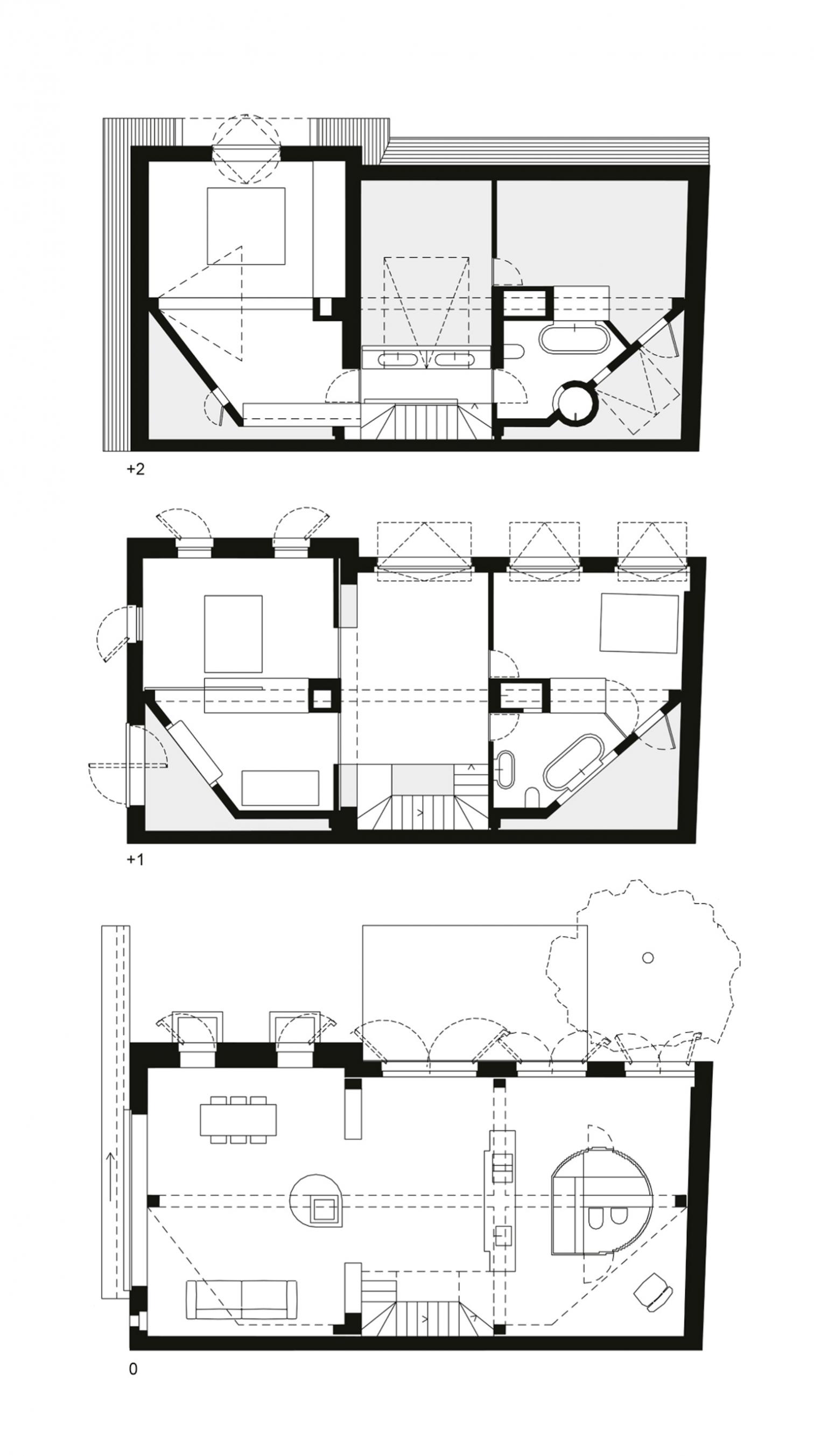
Una cochera sobrevivió a la demolición de la villa ‘fin-de-siècle’ a la que daba servicio, y tras distintos usos a lo largo del siglo XX se ha convertido en la residencia de una familia.
La limitación a dos frentes de ventanas se resolvió con atrios con luz cenital y un hueco circular a dos alturas que hace la planta más diáfana: gestos que han conllevado la inserción de un armazón de hormigón exquisitamente moldeado.










Ficha técnica
MostrarOcultar ficha técnica
Arquitectos Architects
Buchner Bründler Architekten / Daniel Buchner, Andreas Bründler (socios partners); Jon Garbizu Etxaide (dirección de proyecto project management); Nina Kleber, Sharif Hasrat (equipo team)
Superficie Area
405 m²
Fotos Photos
Maris Mezulis; Rory Gardiner