30+8 viviendas sociales en la calle Josep Togores de Palma de Mallorca
Vivas Arquitectos- Tipo Vivienda Colectiva
- Material Tierra compactada
- Fecha 2025
- Ciudad Palma de Mallorca
- País España
- Fotografía José Hevia


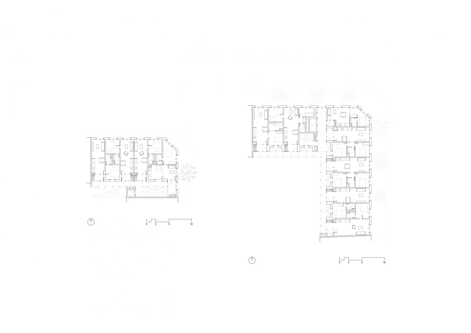
Impulsado por el Instituto Balear de la Vivienda (IBAVI), este proyecto da respuesta a la necesidad de vivienda asequible mediante un enfoque sostenible y contextualizado. Se compone de 38 viviendas distribuidas en dos edificios, situados en la calle Josep Togores de Palma de Mallorca, que emplean bloques de tierra comprimida (BTC) producidos localmente y forjados de madera prefabricados, reduciendo significativamente la huella de carbono y reforzando la identidad constructiva insular.
El edificio principal, situado en una parcela en esquina con forma de L y una profundidad edificable de 11,5 m, cuenta con planta baja y cuatro niveles superiores de viviendas, además de sótano y parte de la planta baja destinados a un aparcamiento de treinta plazas. El segundo edificio, en una parcela rectangular, alberga ocho viviendas distribuidas en planta baja y primer piso.
El uso del BTC no solo reduce el impacto ambiental por su bajo consumo energético —al no requerir una cocción a altas temperaturas—, sino que también mejora la calidad del aire interior gracias a su porosidad, que permite la transpiración de los muros. Su inercia térmica y capacidad aislante refuerzan la eficiencia energética y el confort acústico de las viviendas.
El diseño arquitectónico promueve la vida comunitaria mediante patios interiores y pasarelas cubiertas, que además favorecen la ventilación cruzada y el confort climático. Las viviendas, de uno o dos dormitorios, cuentan con doble orientación y una distribución eficiente, sin pasillos y con cocina central abierta al salón. Una galería multifuncional al suroeste actúa como filtro térmico y visual, maximizando el confort interior durante todo el año.

















