Aduana / Oficina postal, Manama
Studio Anne Holtrop- Tipo Sede / oficina Comercial / Oficina Rehabilitación
- Material Hormigón
- Fecha 2016 - 2019
- Ciudad Manama
- País Baréin
- Fotografía Maxime Delvaux


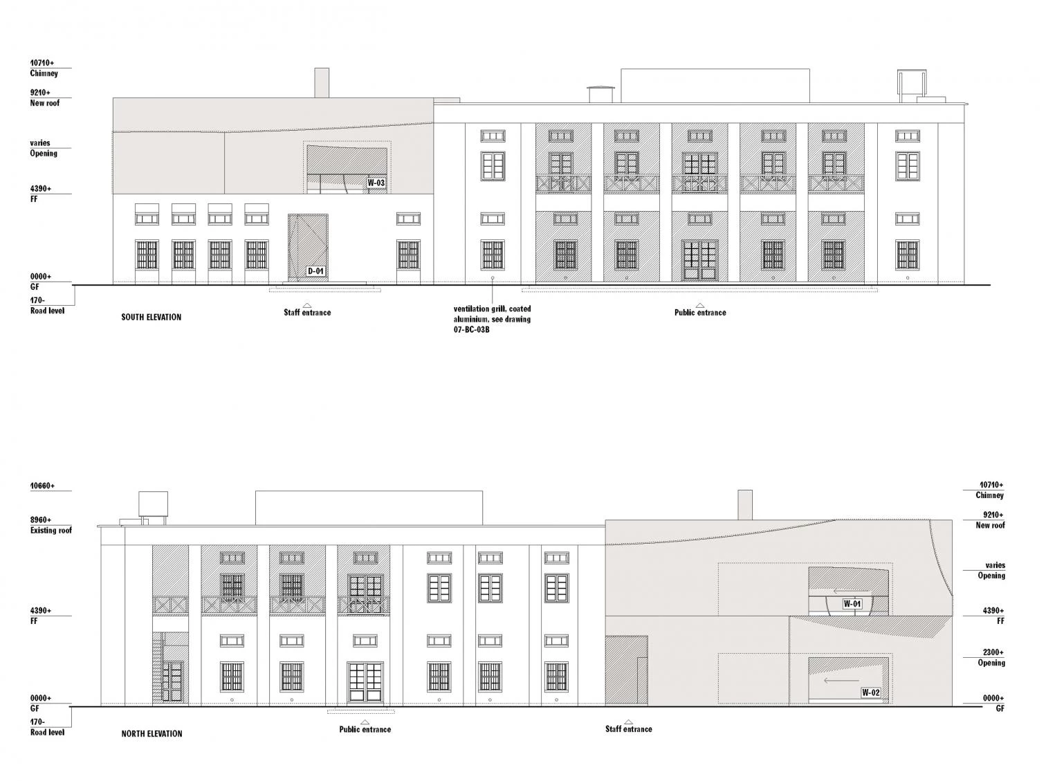
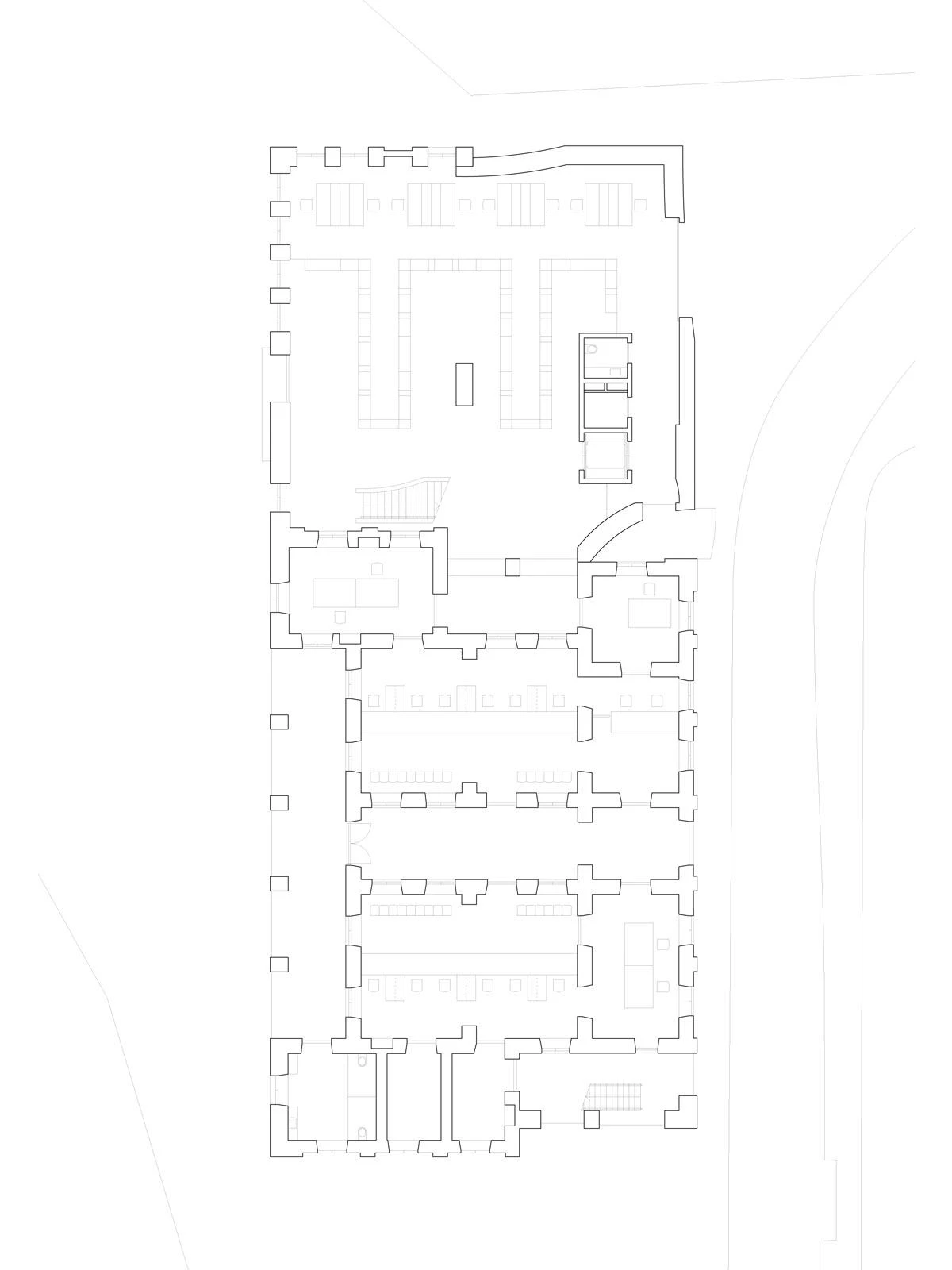
La firma del arquitecto holandés Anne Holtrop llevó a cabo la intervención para recuperar y ampliar la antigua aduana del puerto de Manama —uno de los edificios públicos más antiguos de la capital del emirato de Baréin, construido en 1937—, que se transformó en la década de 1980 en una oficina postal envuelta en hormigón y acero. Los trabajos de restauración comenzaron en 2014 para eliminar la fachada y el pórtico añadidos a los volúmenes históricos. Se restauraron los balcones originales haciéndolos accesibles al público. El conjunto se completa con una nueva construcción rugosa de hormigón blanco cuyas esquinas están recortadas. El espesor de sus muros coincide con el de los existentes, 80 centímetros. La ampliación contine 4.400 buzones e instalaciones de clasificación.
La renovación de la oficina postal de Manama es una de las obras finalistas que optan al Premio Aga Khan 2022.

















Cliente Client
Bahrain Authority for Culture and Antiquities; Ministry of Transportation and Telecommunication, Kingdom of Bahrain
Arquitectos Architects
Studio Anne Holtrop / Anne Holtrop (arquitecto architect); Maitham Almubarak, Alessandro Ianello, Leonardo Manti, Alexander Poulikakos, Mohammad Salim, Christian Vennerstrøm, (equipo team)
Colaboradores Collaborators
Mario Monotti (estructura structure); Emaar (ingeniería engineering)
Fotos Photos
Studio Anne Holtrop, Maxime Delvaux