Estudio Carlos Jiménez, Houston
Carlos Jiménez- Tipo Comercial / Oficina Estudio
- Fecha 1983 - 2018
- Ciudad Houston
- País Estados Unidos
- Fotografía Paul Hester Luís A. de Santos
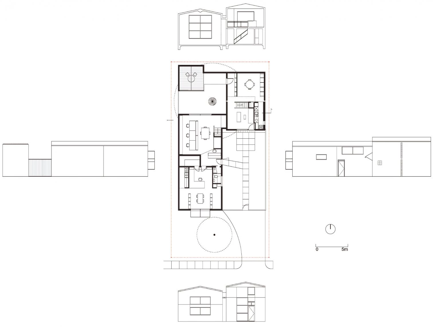
Comenzado en 1983, el estudio profesional del arquitecto es un proyecto en marcha que explora los espacios para la vida y el trabajo, y que ha ido experimentado numerosas variaciones a lo largo del tiempo. Las ampliaciones, las sustracciones y las transformaciones se han producido sobre una serie de pequeños edificios y patios que, gracias a la última de las intervenciones, han podido convertirse, al fin, en un conjunto unificado.
Este trabajo de variación formal y tipológica ha sido posible gracias a la sencilla geometría ortogonal de las piezas, que ha resultado muy versátil en cada una de las etapas de la intervención para responder a las necesidades de la vida, el trabajo y todas las circunstancias asociadas o imprevistas. Construidos con muros de fábrica de bloques de hormigón acabados al exterior con un suave estuco, los edificios están pintados de un intenso azul lavanda que evoca los muchos matices que suele presentar el cielo de Houston. En torno a ellos, delimitando el perímetro del solar, se levanta una valla de acero que acentúa la sensación de privacidad. En el interior de la parcela, el conjunto de piezas se entrelaza con los árboles preexistentes y los recién plantados, y también con los patios y la luz, para enriquecer al cabo las experiencias de la vida cotidiana.











Superficie Building size
220 m² 2,400 ft²
Cliente Owner
Carlos Jiménez
Arquitecto Architect
Carlos Jiménez Studio, Houston, Texas
Contratista Contractor
Carlos Jiménez Studio
Fotos Photos
Paul Hester, Hester+Hardaway Photographers; Luis A. de Santos, Photographer