JKMM gana el concurso del Museo de Arquitectura y Diseño de Finlandia

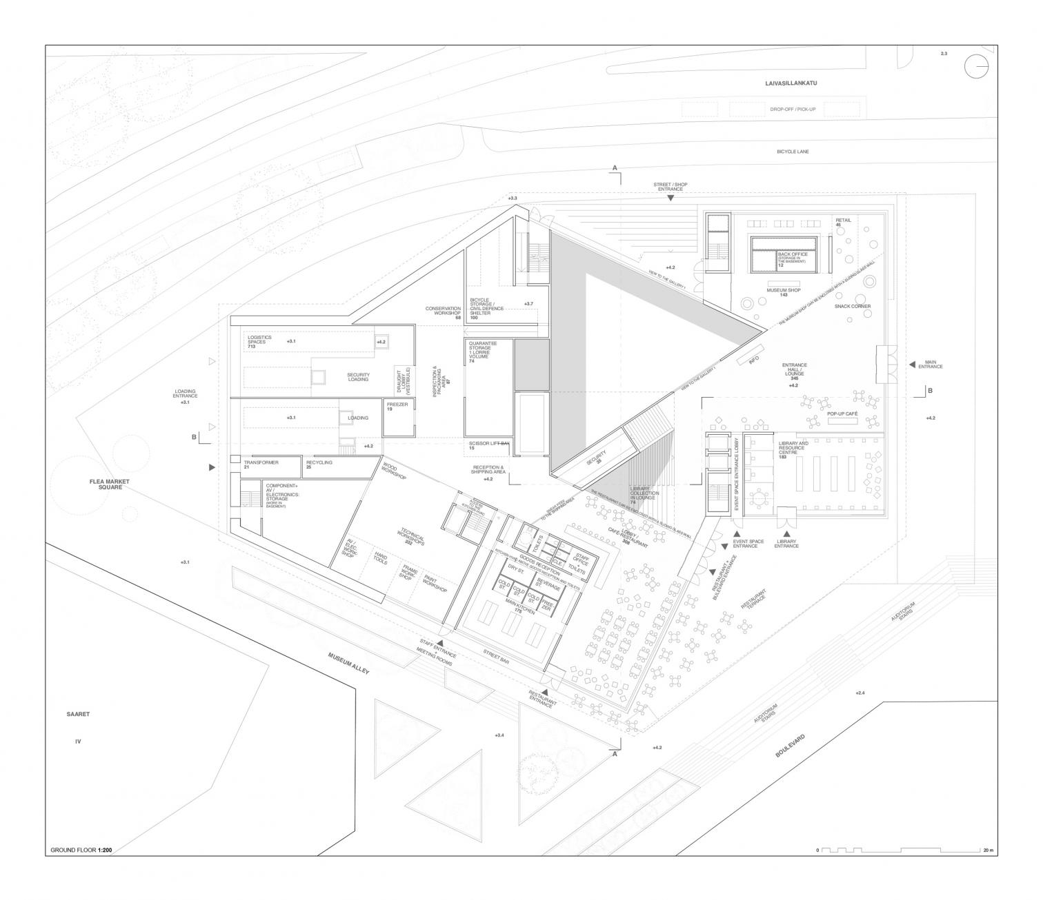
Primer premio: Kumma, de JKMM
El estudio de Helsinki JKMM Architects ha sido proclamado ganador del concurso internacional para construir para el nuevo Museo de Arquitectura y Diseño de Finlandia, que se ubicará en un antiguo muelle del puerto sur de la capital del país nórdico. Su propuesta ‘Kumma’ fue seleccionada entre 624 candidaturas tras un proceso de selección anónimo que se extendió durante dieciocho meses.
El proyecto ganador se caracteriza por una base triangular y su baja altura, lo que permite una integración respetuosa con el entorno, al tiempo que establece una identidad arquitectónica distintiva. El museo incluye una gran terraza con vistas al mar, y cuenta con una superficie total de 10.050 m². El edificio albergará una colección que supera los 900.000 objetos. Además, la sostenibilidad ecológica, social y cultural ha sido un principio rector en su diseño.
El jurado, presidido por Mikko Aho, valoró la propuesta de JKMM por su equilibrio entre respeto por el contexto einnovación arquitectónica: «Kumma se integra en el paisaje urbano, protegiendo las valiosas vistas del histórico paseo marítimo, al tiempo que destaca como un hito reconocible. El uso de ladrillos reciclados en la fachada aporta calidez escultórica».
El primer premio está dotado con 60.000 euros. El segundo premio, de 35.000 euros, fue para ‘City, Sea and Sky’, del estudio Cossement Cardoso, con sede en Portugal y Bélgica. El tercer galardón, de 25.000 euros, recayó en ‘Moby’, del estudio suizo Lopes Brenna. El cuarto premio, de 20.000 euros, fue para ‘Tyrsky’, una propuesta del colectivo finlandés formado por Kerttu Snäkin, Henri Vierimaa, Petra Matikka, Minttumeri Hirsimaa y Emilia Åman.
Se prevé que las obras comiencen en 2027 y que el museo abra sus puertas al público en 2030, consolidándose como un nuevo centro cultural en el corazón de Helsinki.

Primer premio: Kumma, de JKMM

Primer premio: Kumma, de JKMM

Primer premio: Kumma, de JKMM

Primer premio: Kumma, de JKMM

Primer premio: Kumma, de JKMM

Primer premio: Kumma, de JKMM

Primer premio: Kumma, de JKMM

Primer premio: Kumma, de JKMM

Primer premio: Kumma, de JKMM

Primer premio: Kumma, de JKMM

Primer premio: Kumma, de JKMM

Segundo premio: City, Sea and Sky, de Cossement Cardoso

Segundo premio: City, Sea and Sky, de Cossement Cardoso

Tercer premio: Moby, de Lopes Brenna

Tercer premio: Moby, de Lopes Brenna

Cuarto premio: Tyrsky, de Kerttu Snäkin, Henri Vierimaa, Petra Matikka, Minttumeri Hirsimaa y Emilia Åman

Cuarto premio: Tyrsky, de Kerttu Snäkin, Henri Vierimaa, Petra Matikka, Minttumeri Hirsimaa y Emilia Åman