JKMM wins competition for Finland’s new Museum of Architecture and Design

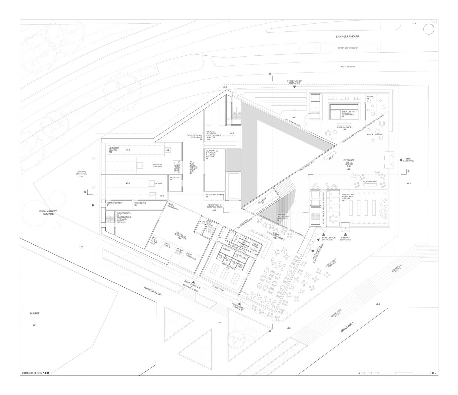
First prize: Kumma, by JKMM
The Helsinki firm JKMM Architects has been named the winner of the international competition to design Finland’s new Museum of Architecture and Design, to go up at the old docksite of the Nordic capital’s South Harbor. The scheme ‘Kumma’ was selected from a pool of 624 candidates, following an anonymous process that took eighteen months.
The winning project is characterized by a triangular base and a low-lying figure that helps it integrate with the surroundings while asserting a distinctive architectural identity. The museum includes a large terrace with views of the sea and counts a total surface area of 10,050 square meters. The building will be home to a collection of over 900,000 artefacts. A guiding principle in the design is sustainability – ecoogical, social, and cultural.
Chaired by Mikko Aho, the jury appreciated how JKMM struck a balance between respect for the existing context on the one hand, and architectural innovation on the other: “Kumma blends into the cityscape, protecting valuable views of the historic waterfront, while at the same time standing out as a recognizable landmark. The use of recycled brick on the facade brings sculptural, architectural warmth.”
The winning design was awarded 60,000 euros in prize money. A second prize of 35,000 was awarded to ‘City, Sea and Sky’ by Cossement Cardoso, a practice based in Portugal and Belgium. The third, amounting to 25,000, went to ‘Moby’ by the Swiss firm Lopes Brenna. And the fourth, 20,000 euros, to ‘Tyrsky,’ by the Finnish group formed by Kerttu Snäkin, Henri Vierimaa, Petra Matikka, Minttumeri Hirsimaa, and Emilia Åman.
Construction work is scheduled to kick off in 2027, for the edifice to open to the public in 2030 as a a new cultural center in the heart of Helsinki.

First prize: Kumma, by JKMM

First prize: Kumma, by JKMM

First prize: Kumma, by JKMM

First prize: Kumma, by JKMM

First prize: Kumma, by JKMM

First prize: Kumma, by JKMM

First prize: Kumma, by JKMM

First prize: Kumma, by JKMM

First prize: Kumma, by JKMM

First prize: Kumma, by JKMM

First prize: Kumma, by JKMM

Second prize: City, Sea and Sky, by Cossement Cardoso

Second prize: City, Sea and Sky, by Cossement Cardoso

Third prize: Moby, by Lopes Brenna

Third prize: Moby, by Lopes Brenna

Fourth prize: Tyrsky, by Kerttu Snäkin, Henri Vierimaa, Petra Matikka, Minttumeri Hirsimaa and Emilia Åman

Fourth prize: Tyrsky, by Kerttu Snäkin, Henri Vierimaa, Petra Matikka, Minttumeri Hirsimaa and Emilia Åman