Vision Pakistan en Islamabad
DB Studios- Tipo Educación
- Fecha 2023
- Ciudad Islamabad
- País Pakistán
- Fotografía Usman Saqib Zuberi


El edificio Vision Pakistan, proyectado por DB Studios / Mohammad Saifullah Siddiqui, alberga un centro de formación profesional para jóvenes en situación de vulnerabilidad en Islamabad. Cada año, entre cuarenta y cincuenta participantes reciben capacitación en sastrería, alfabetización y otras habilidades clave, con el objetivo de fomentar su integración social.
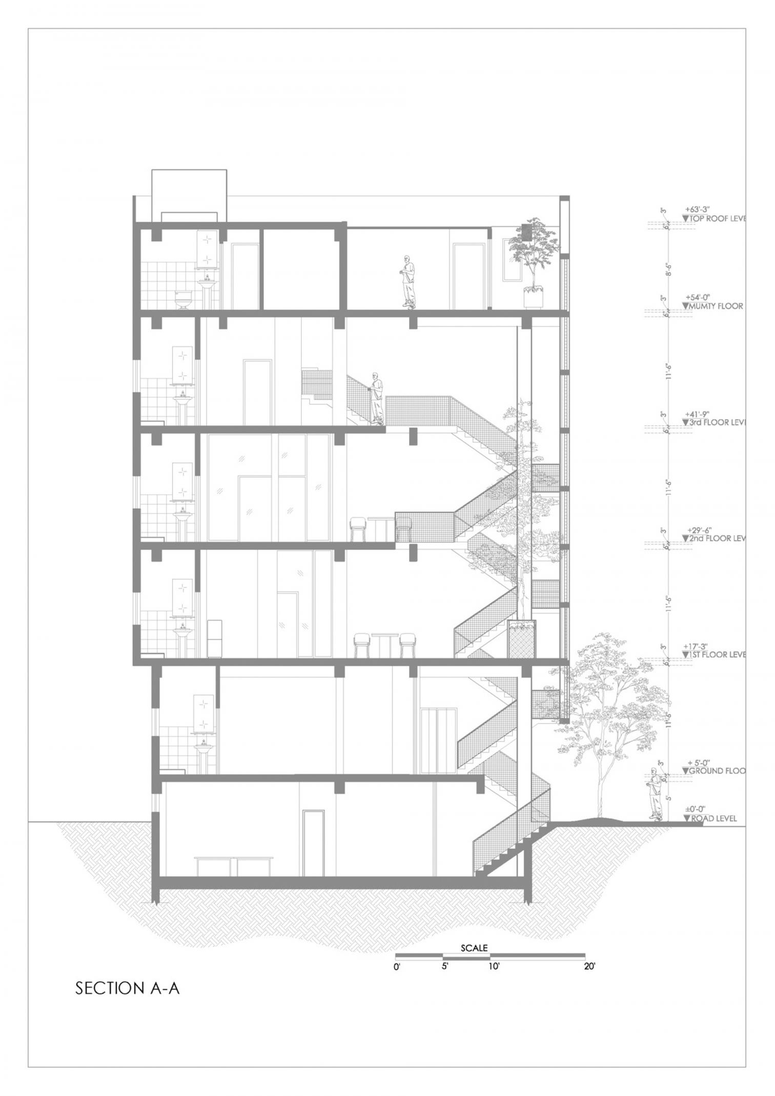
El edificio, situado en un barrio denso, combina tradición y funcionalidad contemporánea. Un atrio actúa como corazón del proyecto, facilitando la ventilación cruzada y la iluminación natural. A su alrededor se organizan aulas, zonas comunes, comedores, salas expositivas, alojamientos para el personal y, en la azotea, un espacio para la oración junto a un huerto cuidado por los propios estudiantes.
Los coloridos paneles metálicos perforados, conocidos como jaali, no solo protegen del sol y otorgan privacidad, sino que también introducen patrones geométricos inspirados en la artesanía pakistaní y árabe. Estos elementos rinden homenaje a la arquitectura de Islamabad de la década de 1960, reinterpretados con colores vivos, generando contraste con el hormigón visto.
Más que una escuela, el proyecto fusiona educación, espiritualidad y autosuficiencia bajo un mismo techo. Al alinear su diseño con la misión de Vision Pakistan, se convierte en un modelo de arquitectura social transformadora. En reconocimiento a su impacto, recibió el Premio Aga Khan de Arquitectura en 2025.

Fotos: © Aga Khan Trust for Culture / Usman Saqib Zuberi














